Skip to main content

Springs Brewery Will Not Be a Bar

Thu, 02/19/2026 - 11:47
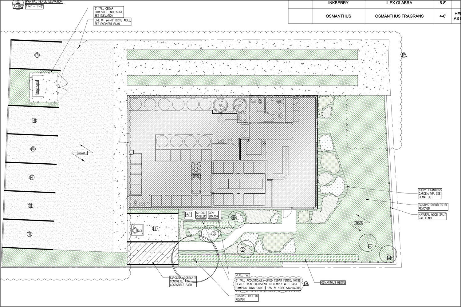
The “ribbon driveway” at the top of the drawing for the Springs Brewery site plan proved problematic when the application was discussed last week by the East Hampton Town Planning Board.
Gunnar Burke Architect

The Springs Brewery traded a big problem — being labeled a bar — for a relatively smaller problem involving total lot coverage, after its owners met with the East Hampton Town Planning Board last week.

Amid the relative chaos in the Building Department last summer, as it operated without a principal building inspector and rumors of a Suffolk County district attorney investigation, came a July determination from Dawn Green, a building inspector, that a planned tasting room at the brewery, proposed for 847 Springs-Fireplace Road, meant that the business must be treated as a “bar or tavern” per town code.

So, when Lindsay Reichart and Gunnar Burke, the owners, spoke to the planning board in August, the conversation was constricted because much, including septic and parking calculations, would be determined by how the town interpreted the building’s use.

And they steadfastly told the board their establishment would not be a bar.

Less than a month after he started working with the town as its principal building inspector, Richard Normoyle overturned Ms. Green’s ruling.

In a letter to Eric Schantz, a principal planner for the town, Mr. Normoyle wrote, “The definition of ‘bar or tavern’ is clearly stated in the town code as a business use or establishment which is primarily engaged in the sale and service of alcoholic beverages for on-premises consumption. The proposed tasting room is a secondary use for this location and not the primary business presented.”

Even with that good news, however, the Springs Brewery is still facing a small case of the spins.

Chris Stoecker, a town planner, told Mr. Burke that grass strips planned for the driveway, which were left off coverage calculations, would lead to rutting and were not appropriate for a commercial driveway.

“It wouldn’t be likely they would last in a grassy state,” he said, given the amount of use the driveway would receive. He recommended paving the strips.

Paved or not, he said the whole driveway would need to be counted in coverage, pushing the project well over the 70 percent of the lot that’s allowed to be covered without a variance.

“It does not appear the proposal can be revised to not require a variance,” he said, adding that the Planning Department “would not recommend against a variance in this instance.”

“We interpret the code differently,” Mr. Burke said.

“We designed this ‘ribbon driveway’ to reduce impervious surface area as part of a sitewide strategy to increase permeability on the site,” he said. “That’s currently all asphalt. We’re proposing gravel, which is more permeable, as well as these vegetated strips in the driveway that we do not believe fall under the definition of a structure.”

“We think this strategy meets the spirit of the zoning code by increasing permeability, reducing stormwater runoff, maintaining vegetated space and the rural character of the area,” he continued. “We also think counting the entire width kind of removes any incentive of doing that.”

Whether or not the Planning Department supported granting them a variance, Mr. Burke said they couldn’t afford to lose another year waiting for an approval. “If the ribbon driveway is not accepted as a solution to the coverage issue, then we will revise the layout to reduce demand on the driveway area,” he said, which might include redistributing use in the building and potentially eliminating a parking space.

One last sticking point centered around the tasting room.

Mr. Burke expected seats for 10 to 12 patrons in an area that constitutes more than 15 percent of the total size of the building. That means that even though it’s not considered a bar as far as Mr. Normoyle is concerned, the Suffolk County Department of Health would still use bar calculations for the septic flow.

That might require a larger sanitary system.

Regardless of how the room is defined, Mr. Normoyle suggested in his determination that the planning board “consider requiring conditions or other restrictions to ensure that on-site activities remain consistent with the use proposed in this application.”

In other words, make sure the “tasting room” doesn’t truly morph into a “bar.”

The board followed Mr. Normoyle’s suggestion and asked for a more detailed narrative on the tasting room and how it would be used.

Thus, the application remained incomplete.

 

 

 

 

Villages

L.I.R.R. Strike Settled in Time for the Onslaught

New York City residents who plan to spend Memorial Day weekend on the South Fork and commuters who rely on the train to cut through the eastbound morning traffic were breathing easier as of Monday night, when a strike called by a coalition of five Long Island Rail Road unions was settled.

May 21, 2026

One Step Away From Eagle Scout, He’s Aiming High

Only 4 percent of Boy Scouts become Eagle Scouts, and Calogero Sferrazza, a junior at Pierson High School, is about to become one of them. As a scout, he has earned almost 21 merit badges, and plans to earn his final credentials with a project honoring veterans in his hometown of Sag Harbor. 

May 21, 2026

250 Plantings for the 250th

The L.V.I.S., which maintains the trees, greens, ponds, and parks that characterize East Hampton Village, has announced a plan to celebrate the 250th anniversary of the United States by planting 250 trees over the next decade.

May 21, 2026

 

Your support for The East Hampton Star helps us deliver the news, arts, and community information you need. Whether you are an online subscriber, get the paper in the mail, delivered to your door in Manhattan, or are just passing through, every reader counts. We value you for being part of The Star family.

Your subscription to The Star does more than get you great arts, news, sports, and outdoors stories. It makes everything we do possible.