Skip to main content

Montauk Restaurant With a View, or a Downtown D.J. Venue?

Thu, 04/02/2026 - 11:00
There are only 19 seats planned for Este's roof deck, which is to have two fire pits, a service bar, and views over Fort Pond.
JM2 Architecture

Will it be another case of bait and switch in Montauk? 

Last year, when the East Hampton Town Planning Board reviewed plans for Este Restaurant, now under construction at 666 Montauk Highway, just east of the Montauk I.G.A., it discussed flooding, curb cuts, a basement, the restaurant’s relation to an adjacent pool, and seating. 

At a public hearing on the project only one person spoke, worried about an alleyway between the restaurant and the adjacent hotel. 

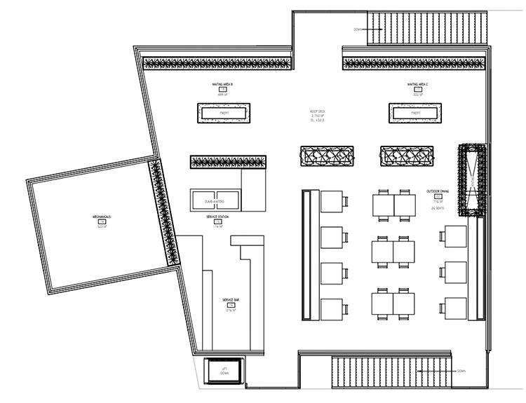
The 5,500-square-foot, two-story restaurant will have a 2,750-squarefoot roof deck (so 8,250 square feet of total space, not including a basement) with a service bar. Its site plan, which included merging two parcels, was approved on Nov. 5.

But the owners of the restaurant may have something bigger in mind than the application suggested. 

A purported investment packet for the restaurant, dropped off anonymously at The Star, describes more ambitious plans, noting that there would be a combined capacity of 455 people on the ground floor, second floor, and roof deck. 

While during the day the packet proposed that Este will operate as a “casual restaurant,” at sunset it describes its morphing into a “large DJ venue,” “similar to Surf Lodge,” providing room for 250 people and overlooking Fort Pond. “It looks like a significant disconnect,” Tina Vavilis LaGarenne, the town’s planning director, said in a phone call. “I’m concerned with those materials, but we don’t know if they were created by or are endorsed by the owners.”

The Star was unable to confirm the authenticity of the packet, which included a lengthy disclaimer about investing and warned recipients against sharing. Multiple phone calls to Marley Dominguez, the managing director of Enduring Hospitality Group Management L.L.C., which through other limited liability companies owns the restaurant property and the adjacent hotel, Offshore Montauk, were not returned, and an email to the address on Enduring’s website was bounced back. According to Enduring’s website, the group is “A vertically integrated lifestyle team focused on irreplaceable, boutique, hospitality properties in best-in-class leisure markets. They invest in undervalued properties with a secure, long term mindset adding value through both design and operational efficiency.” According to the plans ultimately approved by the town in November, on the first floor, there is no seating at all. A floor plan, by JM2 Architecture, shows what looks like two couches in front of a fireplace. Subtracting the square footage allotted for bathrooms and storage, there appears to be well over 1,000 square feet for a “waiting lounge” adjacent to a large service bar. 

The approved plans show seating for only 16 on the second floor and 23 on the roof deck, where there is another service bar. As on the first floor, roughly 1,000 square feet of space surrounds two fire pits. No seating is shown at either of the bars. 

“It’s not meant to be a walk-up bar,” Mr. Dominguez said of the rooftop bar, during a planning board meeting in March 2025. “The main dining area is right against it. There’s no space for people to circulate. It’s really tight. The dining area is already small, and we want that to remain a dining area. That is not a congregating area like you would see at a more traditional bar. There will not be stools at any point.” 

The septic system was designed based on the restaurant seating, as was parking. The parcel has only 20 parking spaces. 

A narrative to the planning board written by Mr. Dominguez last spring said that breakfast, lunch, and dinner will be served. However, there will be no waitstaff. 

“The venue will be casual and at all times we will not have formal waiter service,” he wrote. “Food will be ordered at the counter, a table will be assigned, and food will be delivered.” A maximum of seven employees “for peak dinner service on weekends” will work the three floors. That means 39 seats and seven employees spread over three floors. 

For perspective, Rowdy Hall in Amagansett seats 100 in under 3,000 square feet. 

Mr. Dominguez said last year that the restaurant (again, there is no mention in his narrative of its operating as a bar) would be open seven days a week starting at 7 a.m., closing at 10 p.m. Monday through Thursday and at midnight on weekends. The roof deck will close at 10 p.m. every night, according to the narrative provided to the planning board. Those are the official and approved plans. 

In the supposed investment packet, separate sheets depict the second floor as a “speakeasy style,” “vibey bar” with room for 80. It wasn’t clear from the approved floor plans if a box titled “service” was another service bar. According to the packet, the first floor would contain a bar with room for another 125. 

“The narrative given to the town does not comport with the operation of an almost 500-capacity facility,” said Ms. Vavilis LaGarenne. “You cannot serve 455 people with seven team members. Calling them ‘service bars’ implies they’re for waitstaff. The sanitary plans they submitted to the Suffolk County Health Department include no bar use at all.” 

Indeed, at a planning board meeting last March, Richard Whalen, speaking for the restaurant, which at the time was known as the Surfrider Restaurant, said, “It’s a very small proposed restaurant, you know, a fairly straightforward application.” 

Explaining the open space throughout the establishment in his narrative, Mr. Dominguez wrote, “We expect dinner to be focused on sit-down meals and sunset views. As such, service will be on the second floor and rooftop only. Since we do not take reservations, we expect a need for a larger waiting area, which will be on the first floor.” 

Offshore Montauk, Enduring’s adjacent 43-room hotel, was purchased in 2024 through a separate L.L.C. for $23.5 million. It opened last summer. 

The new restaurant is separated by an alleyway and not, apparently, an accessory use of the hotel. Mr. Whalen told the board last year that patrons of the hotel have historically walked across the alley to access the pool. 

“If I’m at the restaurant, and I want to bring my gin and tonic to the pool deck, can I?” asked Michael Hansen, a planning board member at the time (he was elected as town clerk in November). 

“The pool will be for hotel guests only,” said Mr. Dominguez. “You will need a wristband, or whatever we decide to make sure people are identified as hotel guests.” 

The supposed investment packet said the pool would be used as an event space and for “brand buyouts.” 

Villages

Traffic Influx on Back Streets Rattles Sag Harbor

Technology may be helping travelers cut time from their commutes and shave minutes from their vacation trips, but some Sag Harbor Village residents say that same technology is ruining the quality of life in their otherwise quiet neighborhood.

May 14, 2026

Composting Tables Are Back

ReWild Long Island will resume hosting compost tables at the Springs Farmers Market this weekend, with more coming to Amber Waves Farm and the Montauk Community Garden.

May 14, 2026

East Hampton Village Budget Lowers Taxes

East Hampton Village residents will pay a slightly lower tax rate in fiscal year 2027 than in 2026, according to a summary of the tentative budget issued by Marcos Baladron, the village administrator, to Mayor Jerry Larsen and the village board this week. 

May 14, 2026

 

Your support for The East Hampton Star helps us deliver the news, arts, and community information you need. Whether you are an online subscriber, get the paper in the mail, delivered to your door in Manhattan, or are just passing through, every reader counts. We value you for being part of The Star family.

Your subscription to The Star does more than get you great arts, news, sports, and outdoors stories. It makes everything we do possible.