Skip to main content

Bridgehampton Neighbors Pan Equestrian Center

Sun, 03/01/2026 - 10:01
The property borders the Channing Daughters Winery.
Christopher Gangemi

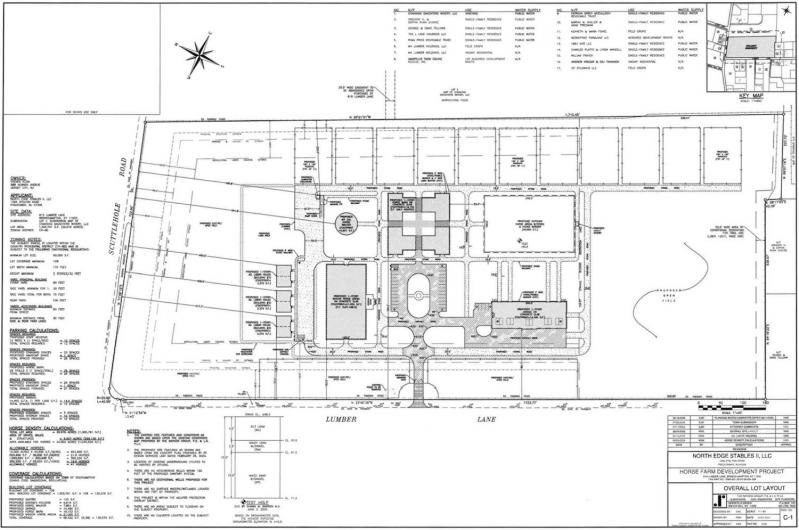
An equestrian center complete with a 21,000-square-foot indoor riding arena, a stable for 26 horses, manure pit, three 2,272-square-foot houses, and a nearly 15,000-square-foot garage proposed on a protected parcel of land next to the Channing Daughters Winery in Bridgehampton was roundly panned by residents at a Southampton Town Planning Board public hearing Thursday night.

The 30-acre parcel at 819 Lumber Lane in Bridgehampton sits at the corner of Scuttlehole Road and has been maintained as a grassy field since the town purchased its development rights for nearly $2 million in 2002. 

To go forward with the project, the applicant needs a special exemption permit from the town and a farmland construction permit, both of which the planning board has the power to grant.

The lot is now owned by Steven Klein, a fashion photographer, but he is in contract to sell it to Gabi Morris, managing member of North Edge Stables II L.L.C. Ms. Morris plans to raise, breed, board, and train show-jumping horses at the facility. Mr. Klein has previously used the land relatively lightly to exercise his own horses.

For two hours the board heard from 33 incensed residents (and their lawyers) who strongly opposed the project. 

In addition, Pamela Harwood, the president of the Bridgehampton Civic Association, presented the board with a petition opposing the development, signed by 265 Bridgehampton residents.

"We've never received so many names," Ms. Harwood said.

A few themes emerged from the public comments: water quality concerns (the parcel sits in an aquifer protection district), tax dollars wasted on farmland preservation, the lack of the board's insistence on strong environmental review, the precedent set for other preserved land, the gaming of the town's affordable housing issue, which led to accusations of bad faith, and inconsistency with the town's comprehensive plan.

There was also anger, with a few simply calling the plan "grotesque."

"There has been an attempt to classify housing for horse grooms as agricultural labor housing, something that I believe stretches the definition of agricultural labor beyond recognition," said Nina Channing, whose family owns and operates the adjacent Channing Daughters Winery. 

When the planning board approved a subdivision in 2002, it established the land as an agricultural reserve and specifically said no dwellings would be constructed on it.

"Grooms caring for privately owned show horses are employees of a luxury recreational enterprise. At a time when our town faces a genuine housing crisis, when essential workers struggle to live in the community they serve, it is indefensible in my eyes to create an exception in our farmland protections to subsidize the labor costs of a luxury corporation," she said.

Ms. Channing went on, describing how for more than 50 years her family has paid into the tax base with others who supported farmland preservation through the community preservation fund. 

"We supported farmland preservation because we believed permanent meant permanent. This is not incidental agricultural activity; it is an intensive commercial buildout on land that was preserved specifically to avoid this exact kind of transformation," she said.

Lawyers and others took issue with the legal advice given the board that they said led to the improper administration of the New York State Environmental Quality Review Act.

Maggie Macdonald, a lawyer at Sive, Paget & Riesel, a firm representing a group of neighbors known as the Bridgehampton Conservation Alliance, said the plans the applicant provided were incomplete and misleading and resulted in the planning board deeming the project complete without environmental review. 

She pointedly accused Ms. Morris's team of subterfuge. SEQRA requires that any project that disturbs more than 10 acres of land be subject to a stringent environmental review.

The Southampton Town Planning Board held open a public hearing on a proposal to create an equestrian center at a parcel at 819 Lumber Lane in Bridgehampton.
The Raynor Group

In November, the board was poised to require further environmental review because the October plans submitted by Ms. Morris proposed nearly 24 acres of disturbance on the 30-acre parcel. New plans submitted just before the November meeting, however, "intentionally omitted areas that will obviously be disturbed," Ms. Macdonald told the board.

"The applicant must be required to submit plans accurately depicting all areas of physical alteration so the planning board can determine whether the proposed development is a Type 1 action requiring environmental review," she argued.

Scott Furman, also of Sive, Paget & Riesel, told the board not to be fooled.

"There is an exemption [under SEQRA] for agricultural, but this is not agricultural. This mimics agricultural. This can be construed or conceived to be agricultural when you view it from afar. But when you look at the details, you're going to find that this is a commercial equine facility."

Why is environmental review important? Well, for example, a single horse produces 35 to 50 pounds of manure per day, and the parcel sits squarely in an aquifer protection district.

"Two hundred thirty-one tons of horse manure over the sole source aquifer that supports your community's drinking water," said Kevin Williams, a principal planner for GZA GeoEnvironmental. He was another among the many who urged the board to reconsider the SEQRA determination and order a more complete review.

Only Ms. Morris's lawyer, Wayne Bruyn, and Jay Schneiderman, a former Southampton Town supervisor, spoke in favor of the project. Mr. Bruyn argued that the town's easement allowed agricultural production, including raising, breeding, and training horses, and agricultural labor housing. He also said it was a private facility, not commercial.

That did not win over the tough crowd.

In trying to sell the concept to the board, Mr. Bruyn said, "Aside from the building area, which constitutes less than 10 acres of disturbance, the condition of the premises will remain virtually undisturbed."

That comment was met with laughter from the audience.

"I'm someone who drives by this open space on Scuttlehole Road several times a week," said Peter Ginna, who remembered walking on the property with his father in the 1960s. The thought of years of taxes going to preserve a space that is about to be developed upset him. 

"I'm horrified that's where my tax dollars have gone." Approving the project would not only set a poor precedent, but it also might "discourage people who might sell easements if they think 25 years from now someone is just going to put a parking lot and 30,000 square feet of barns and structures on it anyway."

David Chris, a resident of Lumber Lane, said it was a "hugely important" application. "To make this decision without a full SEQRA review, without really understanding the environmental impact, would be a real mistake. I don't think you'll be serving yourselves well and I don't think you'll be serving the community well."

The board listened. 

Despite a recommendation by Mr. Bruyn to close the public hearing, Jacqui Lofaro, the board's chairwoman, decided to leave the hearing open. The matter will be heard again on April 9.

Villages

Village’s New Chief Lifeguard Was N.Y.P.D. Diver

Memorial Day weekend was a washout at East Hampton Village’s vaunted beaches, but inclement weather did not dampen the enthusiasm felt by Sean Daly for his new role as the village’s chief lifeguard, succeeding Drew Smith.

May 28, 2026

Item of the Week: Elizabeth Parsons Edwards, a Portrait

Elizabeth Parsons Edwards (1874-1943), seen in this undated photo, worked her family farm on Fireplace Road, canning vegetables and making everything from butter to clothing to music.

May 28, 2026

L.I.R.R. Strike Settled in Time for the Onslaught

New York City residents who plan to spend Memorial Day weekend on the South Fork and commuters who rely on the train to cut through the eastbound morning traffic were breathing easier as of Monday night, when a strike called by a coalition of five Long Island Rail Road unions was settled.

May 21, 2026

 

Your support for The East Hampton Star helps us deliver the news, arts, and community information you need. Whether you are an online subscriber, get the paper in the mail, delivered to your door in Manhattan, or are just passing through, every reader counts. We value you for being part of The Star family.

Your subscription to The Star does more than get you great arts, news, sports, and outdoors stories. It makes everything we do possible.